一种自组织、自适应的工作室内结构组装系统设计
建筑学研究生2015秋季建筑设计课“室内设计”方向课题
指导教师: 张彤,杨志疆,夏兵,张嵩,张旭
2015.9-2016.1
课程任务
设计一种满足建筑(设计)类专业教学需求的,自组织、自适应的工作室内结构组装系统,并在东南大学前工院南一楼四间教室试装搭建,用于包括自己在内的本年级同学的专业学习。
自组织:不依赖于外部环境,结构自支撑,功能自组织,形式自生成;
自适应:系统应能适应不同形状、大小、高度的空间条件,装配完成后容纳自我调配、移动与再组装的可能。
目标与要求
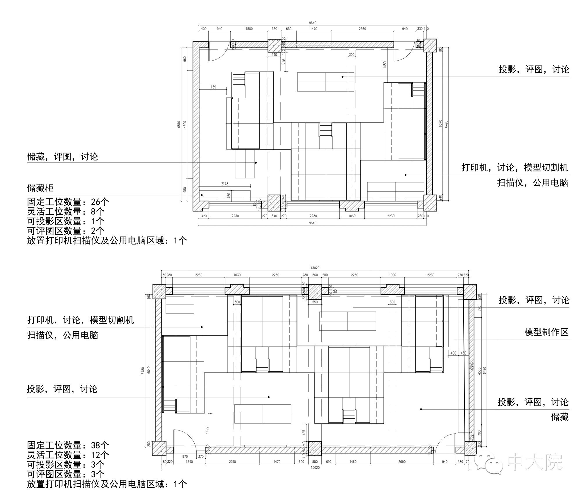
功能复合性/空间集约化
系统应同时完成设计专业教室学习、讨论、展示与收纳四种功能,并在有限的空间内获得尽可能多的有效工位。
规格最少化/组合多样性
系统应采用尽量少的材料种类和规格,产生出尽量多的组合可能。
材料易获得/组装便操作
系统采用的材料与连接节点应是常用、易获得的,应满足牢固(在设计的跨度内足以支撑人的活动)、耐久、自洁(不做装配后漆面)和经济的要求;系统采用的组装和连接方式
应简便、易操作,满足多向连接、拆卸与再组装得要求。

东南大学前工院南一楼建成教室

东南大学前工院南一楼教室原貌
教师评语与学生感言
任课教师,张彤
建造是建筑学最直接有效的学习方式。
Build-in-Studio是建筑学研究生2015秋季建筑设计课“室内设计”方向课题。教学要求完成的成果是一种满足建筑(设计)类专业教学需求的,自组织、自适应的工作室内结构组装系统;并选择一套方案在前工院南一楼四间教室试装搭建,为自己营造专业学习空间。
学生们的设计要求以采用尽量少的材料种类和规格,产生出尽量多的组合可能和有效工位;综合满足设计专业教室学习、讨论、展示与收纳四种功能,并应考虑材料的经济性和组装的便易性。
不止于建成作品的教学设计在人体尺度、材料与连接构造、单元设计、组织结构与空间效果等多个方面取得优秀成果,多个设计方案深化后可以成为设计类专业教室家具配装的推荐图集。经比选用于前工院南一楼改造的实施方案,在包含材料选择、工位获得、加工组装可行性以及空间质量的多个方面取得了最为均衡的成果。建造过程中学生们全过程主导和参与家具设计与放样、材料选择、施工组织、造价核算和现场搭建,获得了最为直接的知识和经验,也将在自己和同学们的使用中检验和修正设计成效。

单元设计(马驰 孙柏肖葳)

单元模型(陈乐 杨洋唐时月)
选课学生,湛洋
投标的时候有曾有老师说过中标是“痛苦”的开始,当时还不以为然,想想只不过是要做一个真实比例的模型而已。而后一天天的熬夜才让我渐渐明白“痛苦”所在,真实的建造并不像sketchup软件里拉一拉模型那么简单,任何一个小小的问题都要尽可能地解决,而难点就在于解决它的同时也会带来更多的问题。此外,这一次不再像以前的设计只需要面对设计本身,更多的是需要与人打交道,这让我有点力不从心。所幸的是,有如此多的小伙伴的一起努力,一起分担,项目算是比较顺利地推进了下去,已经完成的部分虽有缺憾,但也能算是差强人意了。回头看一看,刚走过的两个月如此充实,“痛苦”已悄然化成一种莫名的“喜悦”。未来这四间教室会怎样,拭目以待。

工位布置(熊子楠湛洋 孙一帆)

空间划分(熊子楠湛洋 孙一帆)

平面布置图(熊子楠湛洋 孙一帆)
选课学生,熊子楠
作为一个设计者,有幸经历了一个项目从开始设计到最终实现的过程。真实的建造经验是无法直接通过语言和文字习得的,如果不能熟练地对物质进行操作的话,主观的构想也只能是一场思维的游戏和图像的盛宴。对于这个过程,设计者需要将一系列抽象化的要素组织成一个复杂系统,而另一方面,也要通过运作和协调每一个生产环节,组织社会分工将纸上的构想实现成产品,既要将自己抽离于现实专注创造,也要通过经济生产将自己融入社会,并能恰如其分地在二者之间自由切换,其难也已。

方案模型(熊子楠湛洋 孙一帆)
任课教师,夏兵
用大脑设计;用双手创造;再用大脑反思;
这是一个完整的生物反射循环弧——该课题的价值在于此。对设计的理解,在身体的劳顿之中加深;跨出校园,才了解社会百态。而真正的设计,在等待拉开序幕的那一瞬,顿悟将会到来。

施工横道图(熊子楠湛洋 孙一帆)
选课学生,陈乐
每一次的设计与建造过程就是一次从猜想到验证的过程。我最深的体会就是,材料的重量感,体积感,空间感,是在用软件绘图时是感觉不到的。本次设计的特别之处在于,因用地条件和工位数量的要求,会出现一些反常规尺度,例如,楼梯的尺度 不能是宽高是300和150;会出现在空间上有所叠加的两层工位。难点在于如何将其转化为能正常使用的舒适空间。另外,还要适合建筑设计教学的特点:小组合作加集体评图需要集中大空间,同时需要更多的储藏空间和大桌面板等等。所以,在设计初期所研究的人体尺度,模度应该紧密结合具体的设计构思,而不是盲目把模度作为出发点去生成形式上很“丰富”的东西。最后的成果整体比预期的好,主要体现在尺度上,现场的空间感显得比su模型查看时更大,特别是二层工位和一层的共享空间,不显得拥挤。但也有缺憾,如一层工位在现场体验时仍有可能出现碰头的情况,楼梯踏步比预期要陡,自然采光不是很理想。在建造过程中,最值得思考的就是,图纸如何去控制施工。以前总认为建筑师画构造图需要很细地画到每一个螺丝钉,去控制现场的一切。这其实是有危险性的,如果这样做,则绘图者有非常丰富的实践经验,要以建造者的身份去想象现场的每一个细节。实际上更为重要的是要对各个工种的能力有所了解,对节点工艺的整体把握。最后总结一句,方案的深化很重要,因为它决定了设计最后的品质。


课堂教学
任课教师,杨志疆
此次内空间设计并非简单的室内装修设计,而是在人体工程学基础上,以家具为基本单元的空间设计。因为需要真实的建造,有会涉及对造价的控制、对施工的组织等作为工程的多项内容,通过这样一次从设计到建造完成的全程训练,可以使学生了解以下主要的课程训练要点:
1.空间化的室内设计和装修化的室内设计是不一样的。
2.对人体基本尺度的了解有利于建立起更为真实的空间设计依据。
3.在限定条件极为苛刻的条件下如何去思考解决的方法和途径。
4.从图纸到建造需要面对和解决的各方面问题。

施工动员会
选课学生,黄恩泽
关于这次课程设计感悟最深的就是设计过程中对思考方式的认识,以往的课程设计会有十分详细的任务书,规定了地形、功能、尺度等等,而这次的设计课可以说是提供了一个大体的框架,明确了一个大的方向,至于具体的细节问题则因人而异。这种情况导致的结果是看似思路可以很宽泛,范围很广,然而细想起来却很难在人体尺度、人的空间位置、单元体的模数等多个方面做出抉择,对于我来说这一点是设计的症结所在。一种自组织、自适应的内结构组装系统本身具有较强的灵活性,在前工院这个案例中对空间的适配体现出这一特征,而针对这一特征进行的空间布置与功能设计的思考就更为多样性,对于这个设计的思考方式与方向决定了成果的适配程度与效果,可以说以自组织、自适应的概念贯穿在方案中会引发出多种思维的交汇,同时也会最终展现出多种类型的设计。


材料搬运
任课教师,张嵩
中国建筑师的执业范围在最近十余年被极度的压缩。一方面,建筑经济、建筑结构、建筑设备等建筑专业的分工不断明确,另一方面,室内设计、景观设计、装饰设计等设计环节也越来越多的体现出专业化的特征。建筑师越来越成为设计流水线上面目模糊甚至微不足道的工作单元。校园建造这一设计STUDIO便是对这种极度危险趋势的有力抵抗。为中国未来的职业建筑师重新确定职业定位打下基础,使之重新成为空间营造的主导力量,使之具备更为宏观、整体的视野和体验。其间,各个设计小组从生活观察、建造研究、施工管控、成本核算等环节入手展开设计,更为重要的是他们均实践了施工环节的设计和实施,这一无价经验必使其受益终生。



生搭建
任课教师,张旭
Build In Studio是一次对密度的挑战。同学们用尽浑身解数做了大量尝试,迸发很多精彩的设计概念,值得尝试。可惜的是,只有拔得头筹的方案被实施建造。建造的过程令人难忘,同学们获得了纸上无法学习的知识。设计、计划与施工组织的关联在这场教学实践中深入人心。
选课学生,杨洋
建筑师要画的了图纸,扛的了钢架。这是一次实际的设计,实际二字从一开始就让人兴奋。撇去了以前做方案的大、空、概念,这次设计实打实的让方案落地,并在自己的手中建成。所以从结构出发也好、从空间出发也好,最终衡量的是单元模块自组织的空间适配潜力,即回到了建筑师处理问题的本原——与场地的关系。不可否认的是这次真实的演习让大家收获颇丰,第一次从纸面的建筑师,成长为建造者和使用者,能切实的考虑搭建和使用中的实际问题,让我们获得更全面的锻炼。






建成教室
选课学生,何之凡
本次前工院南楼改造设计可以说是对本科五年建筑学习的一种实验和颠覆,在复杂的搬运、施工、组装环节中,我们充分感受到概念设计与实际建造之间的巨大区别,每一次的实物搭建和工具使用,强化了自己的动手操作能力,每一次与工人师傅的沟通都是锻炼自己理解能力、交际能力和团队合作能力的完美契机,从中也体会到任何一栋小小的房子,在建造过程都会遇到无数的意外和麻烦,而只有处理好这些未知的困难,我们才能在成为优秀职业建筑师的道路上迈出坚实的一步。


在搭建完成的教室里进行课程答辩
选课学生,花修堂
在从概念到设计的过程中,我们的目标很明确—一个轻便的可变可收纳的工位单元。从第一轮的三棱台的组合到第二轮两块板片形成的不同角度单元的拼接再到第三轮的三块板片提供三个单元的效率化布置,在面对众多需求的选择中我们力求将一个特点做到极致。在设计深入的过程中我们对于材料的选择,节点的设计,重量的控制做了很多思考。回顾这次的经历,最大的收获在于要深入思考并选择设计的切入点,并朝着目标不断的优化,企及太多,反而不会出众。


张广军校长、孟建民院士、王保平副校长、韩冬青院长在建成教室里听取学生汇报
选课学生,刘宇鹏
这次前工院南楼的内结构设计不同于以往的设计,不仅要求作出美观又有创意成果,更要求设计本身要有很强的可实施性和一定的经济性。在几轮方案汇报后虽然没有被选作中标方案,却也在这一过程中对人体模数和模数化设计有了深刻的理解。在方案进入施工图阶段后才发现许多设计时的想法在建造过程中都不得不作出牺牲和改变,这是在以往的设计中所没有的。而当一车车钢架和木板运来并被我们一点点拼装起来时,这种成就感是仅仅设计本身所不能带来的。总之感觉自己付出了的辛苦和汗水终于得到了回报!

2012年普利茨克奖获得者王澍教授、麻省理工学院建筑学院前院长Adele Marie Santos教授、院长韩冬青教授等在建成教室中与学生讨论
技术支持:
上海沐恒实业有限公司,浙江荣华家具有限公司

