
Best Paper Award|FoAR年度最佳论文(2)


F o A R 2 0 2 0
最 佳 论 文 奖
导读:本文是《Frontiers of Architectural Research》2020年度最佳论文奖获奖文章之一。本篇推送根据论文摘录稿,简要介绍了原文的研究内容、方法和主要结论。为方便大家阅读,本篇摘录采用中文表达。感兴趣的读者,请点击文末左下方“阅读原文“,可免费下载原版英文全文。
Design, construction, and thermal performance evaluation of an innovative
bio-based ventilated facade
创新型生物基建筑通风幕墙的设计、建造
和热工性能评估
Ester Pujadas-Gispert*, Mohammed Alsailani,
Koen van Dijk, Annine Rozema,Puck ten Hoope,
Carmen Korevaar, Faas Moonen
Department of the Built Environment, Eindhoven University of Technology
KEYWORDS:
Sustainable / Energy-efficient / Circular economy
Bio-materials / Green / Cradle-to-cradle material
摘要
本文主要探讨了建筑通风幕墙的设计、建造和热工性能评估。这种通风幕墙可以快速安装、拆卸,并可集中贮存,便于运输。为倡导资源循环型经济的发展,该建筑幕墙采用生物基材料建造。建筑的表皮覆层由卫生用纸、草、芦苇、再生纺织品、饮用水处理废物、生物基聚酯树脂,以及其他材料组成。在迪拜,建筑幕墙温度及风速测量结果显示,采用该种幕墙设计的建筑物可以有效降低公寓室内温度,尤其是在一天当中气温最高的时段。此种建筑幕墙对于冬暖夏热的气候来说是一种具备优良前景的选择。因为它能帮助有效降低建筑物能源消耗,以及建筑材料对环境的影响。

△LINQ公寓楼综合体剖面效果图|迪拜(©Team VIRTUe)
研究内容
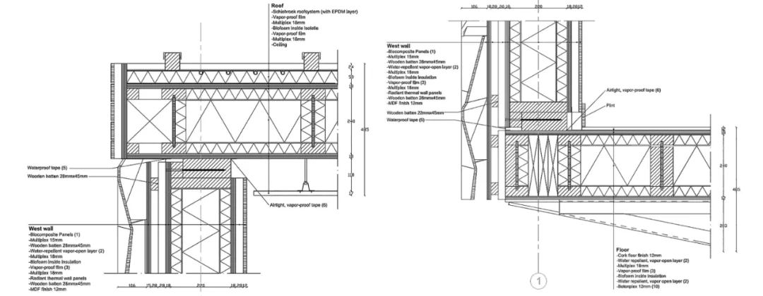
建筑的节能设计可有效降低能源消耗,大致分为主动型和被动型。其中,被动型设计较依赖于自然资源的最优化(例如朝向、玻璃、遮阳、隔热),而主动型设计则是采用高效的电力机械系统(如暖通空调和光电系统)。通风幕墙的建造对于夏热冬暖的气候来说是一种有效的节能策略。
通风幕墙主要包含了两个隔热层及中间若干通风腔体。通风幕墙的主要优势在于散热,其外层(即包层)吸收了太阳辐射,通风腔内产生的自然对流实现了通风的效果。此外,幕墙的内层也起到了隔热和蓄热的作用。通风腔中出现的浮力驱动现象(driven-buoyancy phenomenon)将暖空气推出幕墙外,从而促使冷空气进入幕墙内。浮力的产生源于不同温度和湿度水平导致的室内外空气密度差。此外,风力也可以将暖空气从幕墙中带走。通风幕墙还可以提供隔热并控制湿度,从而防止水汽的冷凝。通风幕墙的热工性能主要受其构件设计的影响,如通风腔的宽度、包层的材料及包层的接缝类型(开放型或封闭型)。由于缺乏设计软件和实验数据的支持,通风幕墙热工性能的全面评估是很难实现的。而对于现有建筑,通风幕墙的性能可以通过现场测试来评估。

△LINQ公寓西面幕墙的内部构造细节(©Team VIRTUe)
幕墙材料的选择也可以显著减少建筑对环境的影响。鉴于其发展的可持续性和多功能性,生物基材料(bio-based materials)被认为是21世纪具潜力的建筑类资源。与钢铁、玻璃和混凝土这些同类材料相比,有效的二氧化碳封存使得这种材料的碳足迹更小。生物基材料是可再生的、可重复利用的,也可以在当地以生态方式生产,运输成本低。值得一提的是,木材因其导热系数较低,适合作为建筑内外之间围护结构(地面、墙体、屋顶)幕墙界面的材料。相反,生物基材料的固有缺点是温度和尺寸稳定性低、防火性能差、对生物及非生物降解的抵抗能力差,同时,随着时间的推移,其力学性能降低显著。然而,市场上的一些修复方法可以确保和维持它们预期的性能和功能,从而延长它们的使用寿命。



△LINQ公寓北面通风幕墙采用生物基材料(©Team VIRTUe)
各式各样的创新都有效促进了节能建筑的发展。自2002年起,美国能源部发起并主办了国际太阳能十项全能竞赛——以全球高校为参赛单位的太阳能建筑科技竞赛。旨在通过以最前沿的节能技术和节能材料为案例向高校学生及公众普及建筑节能的知识。2018年在迪拜举办的国际太阳能十项全能竞赛(中东太阳能十项全能赛)设计主题为“净零能耗建筑”,并要求在中东的自然地理气候下完成参赛房屋的建造过程。比赛中,你可以看到一系列以太阳能为主要能源的建筑物。它们全都能满足以下十个类别的建设目标:建筑设计、土木工程、构造施工、能源管理、节能减排、居住舒适、房屋功能、绿色交通、可持续发展、通讯交流、创新设计。
来自埃因霍芬理工大学(TU/e)的VIRTUe学生团队凭借他们的作品LINQ公寓成功晋级2018年中东太阳能十项全能赛总决赛。LINQ公寓是一座节能建筑,其采用了很多创新型的主动及被动的节能策略。这所建筑对当地电网供应的电能甚至超过了在比赛全程中消耗的电能。为符合循环经济的原则,这座建筑的通风幕墙建造采用了生物基材料。这也是迪拜首次采用生物基材料建造的3D立体幕墙。

△LINQ公寓(©Team VIRTUe)
研究目的
本文的主要目标是以位于迪拜的LINQ公寓作为案例,阐述其在夏热冬暖的自然地理气候条件下,创新性的通风幕墙设计、建造,以及热工性能评估。
具体目标如下:
◇展现建筑幕墙设计的参考因素
◇阐述及探讨幕墙设计及施工方式
◇记录迪拜地区建筑幕墙温度及风速测量值
◇评估建筑幕墙的热工性能
◇对未来幕墙的安装提供一些实用的经验和建议,从而促进施工建造的可持续性


△LINQ公寓光电系统在白天和夜间的工作原理
(©Pujadas-Gispert et al., 2020)
结论
◇由可再生和可回收的生物基材料建造的幕墙有助于提高房屋的可持续性:用于控制室内环境温度的能源消耗降低了。从生命周期的角度来看,从摇篮到摇篮的材料(cradle-to-cradle materials)对环境的影响是相当小的。
◇幕墙外部包层由生物基材料制成,包括卫生用纸、草、芦苇、可再生织物、饮用水处理废物和生物基聚酯树脂等。根据循环经济的原则,该幕墙的最终产品是一种强度高且重量轻的瓦片,其性能类似于玻璃。这种瓦片的边缘有一些非常脆弱易碎的小挡板,从而对其功能产生不利的影响。因此,这些细小的构建必须牢固地嵌入瓦片的主体中。从这种瓦片的生产过程来看,该材料可以很好地适应各部分的设计需求。

△3D打印技术生产的瓦片(©Team VIRTUe)
◇在通风幕墙的设计中,设计单元的重复排列提高了施工的质量、性能以及组装速度。通过构件细节及螺丝的标准化设计,实现了更多的改进。

△生物基材料瓦片幕墙组装(©Team VIRTUe)
◇当公寓在一个新的地点组装或拆卸时,必须慎重考虑针不同气候环境下出现的设计公差。
◇迪拜的温度和风速测量数据显示,在幕墙的通风腔内以及外部包层和胶合板之间的空隙中存在着向上的气流,其源自幕墙通风腔内的风流或空气温度的变化。

△西侧幕墙表面与空气温度测量数据图(©Team VIRTUe)

△幕墙内气流速度与室外风速测量数据图(©Team VIRTUe)
◇通风幕墙内部的空气流动(包括风)、遮阳,以及隔热都有助于建筑物白天的散热。此外,通风幕墙也在夜间帮助维持公寓的室内温度。因此,该幕墙有效降低了室外温度对室内环境的影响。
不久的将来,LINQ公寓将在荷兰进行安装建造,从而可以为大家提供一个深入研究幕墙及其热转移机理的机会。其性能在其他气候条件下可能会得出更多的结论和可能性。在未来的建造和研究项目中,通过将建筑幕墙及其生物基材料纳入设计中,从而实现建筑对环境影响的弱化。


△生物基通风幕墙设计实现了空气的流通(©Team VIRTUe)
延伸阅读
Team VIRTUe是一支来自埃因霍温理工大学(TU/e)的学生团队。自2018年在迪拜举行的中东太阳能十项全能竞赛以来,Team VIRTUe已经成长为一支超过40名来自世界各地的学生组成的新团队(并在不断增长中)。该团队致力于智能技术、可持续建筑和城市规划课题,以寻求解决环境、社会和经济的可持续发展的问题,同时激励人们采取可持续的生活方式。

△Team VIRTUe





作者简介
Ester Pujadas-Gispert

Department of the Built Environment
Eindhoven University of Technology
Ester has a Ph.D. in Architecture (Barcelona, 2016). Her doctoral thesis was entitled “Prefabricated foundations for housing applied to room modules", and was supervised by Prof. Ignasi de Llorens Duran. The research focused on the economic and environmental feasibility of precast foundations for 3D modular precast housing, but the conclusions can be applied to most types of buildings. During the PhD, she completed a research placement in TU/e Eindhoven (The Netherlands). Her current research is related to the optimization of structures, sustainable constructions, building foundations and Life Cycle Assessment.

Mohammed Alsailani
Department of the Built Environment
Eindhoven University of Technology
Mohammed is an Architectural Engineer interested in sustainability, energy efficiency, comfort, and renewable energy in the built environment.
A · N · D






TEAM VIRTUe
Koen van Dijk|Architectural Designer
Architecture, Building and Planning
Annine Rozema|Architectural Designer
Architecture, Building and Planning
Puck ten Hoope|Resources Manager, Logistics
Architecture, Building and Planning
Carmen Korevaar|Secretary, Structural Designer
Structural Engineering
Faas Moonen|Team Coach
Associate Professor Structural Design at Eindhoven University of Technology

论文引用格式
Ester Pujadas-Gispert et al. Design, construction, and thermal performance evaluation of an innovative bio-based ventilated facade, Frontiers of Architectural Research, 9 (3) (2020), pp. 681-696
论文责编: 金星
推文编译: 黄越
Frontiers of Architectural Research(建筑学研究前沿,FoAR)是由和高等教育出版社联合主办的全英文学术期刊,已被A&HCI、Scopus、CSCD、DOAJ收录。FoAR于2012年创刊,季刊(一年四期),在Elsevier平台上发行,开放获取(Open Access)。
期刊论文涉及领域包括建筑设计与理论、建筑技术科学、城市规划、风景园林、遗产保护等,覆盖建筑学、城乡规划和风景园林三个一级学科。本刊优先发表采用严格科学方法和前沿技术进行研究的学术论文,同时也欢迎探讨建筑社会属性的高水平文章。
期刊联系人
桂晓澜(高等教育出版社):010-58556484
呼小檬 (东南大学):025-83795543
刊物邮箱:foar@pub.seu.edu.cn
在线投稿
www.editorialmanager.com/foar
刊物主页
http://www.sciencedirect.com/science/journal/20952635
http://journal.hep.com.cn/foar

《建筑学研究前沿》
长按二维码关注我们

