
2020研究生设计课程丨南京市麒麟科技创新园TOD商业综合体项目方案设计
课题:南京市麒麟科技创新园TOD商业综合体项目方案设计
课题类型:研究生一年级建筑设计课程
指导教师:钱 强
特邀讲师:汪 力(上海联创设计集团/商业建筑设计研究院 总监)
终期答辩:高庆辉(东南大学建筑设计研究院有限公司 执行总建筑师)、俞传飞(东南大学副教授)
参与学生:佘欣艺、吴晶璐、黄晓滢、楼蓉、石佳欣、林虹羽、余钦远、张锡康、赵英豪、孔玉
课程时间:2020年9月至2021年1月
项目背景
麒麟片区位于主城东侧, 东临青龙山、西临紫金山,北侧为仙林副城,南侧东山副城,西侧为南部新城。规划范围西至绕城公路、东至青龙山山脊线、北至沪宁高速公路、南至宁杭高速公路,总面积约82.3平方公里。结合地区功能定位,规划提出南京市麒麟科技创新园的总体发展目标为:南京创新发展的先导区和示范区、国内一流的自主创新基地、国际知名的产学研合作基地、具有国际竞争力的科技成果孵化转化基地。

麒麟片区空间布局结构
规划形成“一心、两轴、四片”的总体空间布局结构。
一心:以中央公园为核构筑创新园中心,沿中央公园两侧形成科技金融、科技研发、商务办公、商业金融等高端产业及其配套服务产业,打造绿色之核、智慧之心、动力之源。一轴:即绿色生态发展轴。围绕中央公园提供金融保险、法律咨询、技术支持、技术培训、会议展示等综合服务,沿线串联中心区、徐家山、青龙山休闲度假区等公共服务组团。四片:(1)研发核心片区;(2)麒麟居住综合片区;(3)上坊研发物流综合片区;(4)生态研发片区;
《南京市城市轨道交通建设规划(2014-2020年)》制定了至2020年10条线路的建设,分别为1号线北延线、3号线三期、4号线二期、5号线、6号线、7号线、8号线一期、9号线、10号线二期、11号线。其中规划建设轨道8号线将在基地内设地铁站点,基地周边区域内有已开通的地铁4号线、地铁宁句线及麒麟有轨电车一号线与二号线。

轨道交通
条件认知
项目地址:位于南京市江宁区麒麟科技创新园
西侧为东麟路、东侧盈泰路、南侧芝嘉东路、北侧丹霞路
用地面积:商办混合用地,用地红线内面积为40965.11平方米
容积率:≤3.8
建筑密度:≤50%,绿地率:≥10%,建筑高度:≤100米
总建筑面积:约23.3万平方米(其中地上15.6万平方米)
功能要求:商业、办公、居住/地块西南侧有地铁线路和站点

基地红线
除了便利的轨道交通,基地附近道路交通顺捷。项目紧邻南京绕城高速、宁杭公路绕城路、沪蓉高速,基地南侧为快速路,设有高速路出入口收费站。
基地交通
基地周边功能以居住为主,另有小学、商业、绿地等,有较为相对成熟的客群。根据南京市总体规划相关要求,科技办公为项目周边的未来主要产业。1KM范围内以居住空间为主,2-4KM范围内以居住、科技办公为主。

周边功能
课程简介
本课题希望能够将教学与实际结合,让学生在设计中体验多元场地条件下的城市空间研究。课程要求研究商业综合体自身特殊的功能需求及其周边环境的设计,研究TOD模式下对未来城市空间发展的影响,以及个人对区域发展的理解和创新,从而进行商业主题策划、功能策划并制定任务书。商业综合体设计针对现有周边环境的全方位调研,也包括基地内部整体规划,结构转换以及建筑空间组织。


终期答辩
教学成果展示
“SPORT· UP”佘欣艺 吴晶璐



麒麟片区是南京城东新开发的高新产业科技园区,场地周边业态以住宅办公为主,通过分析周边客群的需求以及周边商圈的调研,我们引入不同于周围商圈的“体育+商业”特色定位,更好地呼应周边居民对运动活动的需求,同时更好地整合周边的景观资源打造公共活动场所。

设计通过将公共活动与特色的体育商业结合,将建筑屋顶作为公共活动及运动场地,以TOD结合的景观河景公共空间为依托,为居民提供特色商业消费和立体运动场所。

作为升级的特色商业运动+模式,增强体育运动与其他商业业态之间互动互利关系,通过建立集体育运动体验、消费、教育的商业综合体,成为打卡新地标。


总平面图
通过网格限定运动场馆所需要的大空间,檐下大空间掀起坡角,坡角连续形成屋面,最终得到与运动场馆相匹配的富有空间特色的超级屋顶形式,室内活动与室外活动通过超级屋顶得到有机衔接。曲面屋顶的不同坡度根据国际标准对应极限运动、趣味休闲、养生锻炼三种活动类型限定。


坡屋顶生成逻辑
南部景观主要布置与地铁地下一层直通的西南侧入口下沉广场,同时与运粮河直接联系的两处地下商业出入口景观。东侧主要布置沿河道景观的餐饮类商业外摆。

南部河道景观与建筑结合

入口处效果

商业室内透视及业态功能分布
商场入口采用多首层设计。首先西南侧地铁外来人流直接导入商业下沉广场,通过地下一层商业以及下沉广场进入商业综合体内部;地面层通过节点广场进入底层商业,进而通过垂直交通直接达到屋顶层;东侧大楼梯可以直接进入商场内部到达屋顶活动层;屋顶同时作为塔楼的双首层。

共享办公由共享功能层与多种类型的办公标准层组成。商业综合体上的商办人员及住户可通过公共交通直接到达“共享曲面屋顶层”,形成特色办公居住环境。办公空间的共享功能层由共享屋面层、空中客厅层、空中共享娱乐层组成,共享模式增强人与人间的互动交流。公寓的共享生活层主要由共享大堂、共享厨房、共享餐厅等服务基础生活空间,共享娱乐层由共享客厅、共享健身房、共享餐厅等休闲娱乐空间组成。高品质的运动、休闲、文化生活在共享层开展。

“ 智慧街坊”
黄晓滢 楼蓉


本设计立足基地科创高地的区位优势,依托轨道交通8号线开通的机遇,打造了一座以知识为主题的TOD商业综合体。设计以 “知识城市”为出发点,通过“知识-产品-场景”的模式,发展“知识经济”,营造“产-学-研-展-商”一体的“知识城市创新区。设计由商业街区,知识盒子,创客社区和共享办公四部分组成。底部的商业部分摒弃了传统大盒子的商业综合体模式,采用了小体块街坊式的商业街区,形成了下沉庭院+首层+二层平台的“多首层”体系,最大化吸引地铁人流,延伸商业价值。街区上方的商业盒子涵盖共享书店、开放实验室、城市讲堂等主题性功能,既是商场,也能是一座知识之都,一个创新的激发器。创客社区和共享办公置于知识盒子上部,分别设有独立的出入口。底层的商业街区创造了层次错落的屋顶平台,与沿河景观及知识盒子的屋顶花园结合,为用户及周边居民提供了更多的绿化景观与公共活动空间。商业综合体以地铁站为起点,将会成为整个城市片区的交通枢纽与城市客厅。

总平面


形体生成


功能分区

交通流线


节点透视
“城市山林”
石佳欣 林虹羽

本设计将基地与周边环境问题作为生长点,提出“城市山林”的概念,以山洞为主体意向打通基地南北两侧,为场地可达性较差的南向引入人流,提高商业价值,结合“城市”、“山林”两个层面深化,与城市周边功能相呼应,融合了商业、办公、商业、居住、休闲等主要功能。沿街面上根据中部山洞意象,增强底部商业的实体感、并在其上掏挖弧形窗洞,以形成连续的立面节奏。办公与公寓部分利用与底层相似语汇,在保持统一感的同时,营造出更加轻盈的效果。内部利用“山洞”坡度与不规则生长的体量营造出自然山林的氛围,旨在于在室内购物时也可以感受到自然意趣,丰富青年人的娱乐生活体验。

模型南侧鸟瞰

模型西北角鸟瞰


设计策略
由于基地周边有较多科教设施,且居住人群以青年人为主,所以在综合体中引入书店、艺术展廊、音乐表演等功能,以丰富青年人的娱乐生活,创造现代个人生活方式。

总平面

一层平面

上层平面及功能分区

中庭及地铁站出口节点透视

公寓活动室节点透视

上层公寓、办公标准层平面

东西向剖面

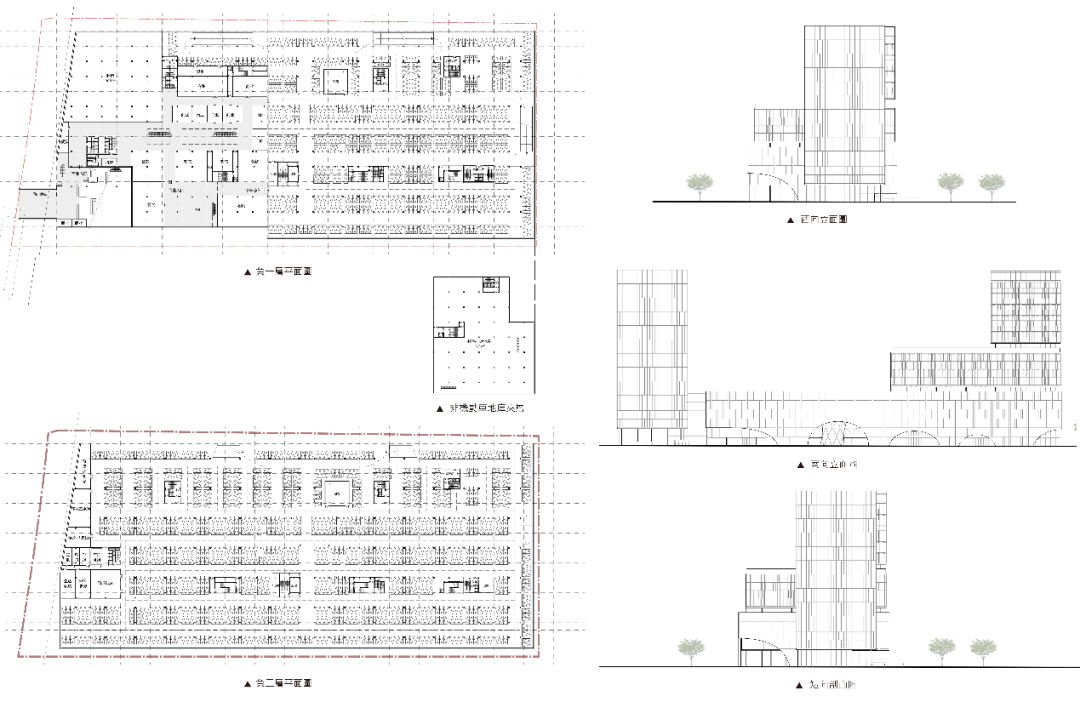
地下层平面及立剖面
“文创汇 ”
余钦远 张锡康

该区域属于新开发建设地段,设计者通过场地调研发现区域内文化类型消费不足,而市场调研表明,在现代商业中文创类业态对于消费者尤其是年轻人群体有相当大的吸引力,因此将设计定义为文创“汇”。设计中容纳了商业、办公、居住、休闲等功能,一方面借鉴TOD开发理念,将地铁站与商业综合体的设计相结合,汇集客群,创造价值;另一方面通过实现与周边传统业态类型的差异化,汇聚诸多文创商业,结合室内与室外多层次空间的塑造,为使用者提供更加多样的活动与丰富的体验。

室外透视

商业策划


方案生成

总平面图


商业空间透视

屋顶文创小镇鸟瞰

屋顶文创小镇节点表现

首层平面图


节点透视

轴测爆炸图 技术图纸
月见南丘
孔玉 赵英豪

本设计从场地周边景观缺失入手,提出“月见南丘”的概念。即希望通过对场地进行地形化处理,形成公园式的商业综合体,以此来重现被周边高层住宅遮挡的江南丘陵景象。同时,地形化的处理也让商业综合体实现了多首层的效果。在商业策划上,场地所在的位置有机会整合周边的集中式商业与分散式商业;因而采用了室内动线+室外商业街的模式。同时尽可能多的引入可外摆的商店以激活商业街与退台,增强公园式商业的体验感与沉浸感。在应对地铁上,设置下沉广场来组织地铁站与商综室内动线以及场地西北地面广场(规划要求)的关系;在商综室内设置层层递进向上的扶梯与通高以吸引人流向上。


方案鸟瞰与四个广场


总平面图

一层平面图




空间效果
致谢
感谢UDG商业建筑研究院和交通建筑研究院提供本次设计课程的选题,以及在设计课程中的支持和帮助。
指导教师

钱强,教授,博士生导师,名古屋大学博士。主要负责的设计课程:四年级建筑设计、毕业设计、研究生建筑设计等。
信息提供:建筑系党支部

