
建筑学专业四年级课程|共享社区:生活模式与住居类型关联性研究与设计——南京建邺区虹苑片区社区更新

课程名称:共享社区:生活模式与住居类型关联性研究与设计——南京建邺区虹苑片区社区更新(CO-LIVING COMMUNITY:Contextual Design on Living Mode and Housing Types——Urban Regeneration on Hongyuan, Jianye District, Nanjing)
课题类型:东南大学建筑学四年级住区类课程设计
指导教师:鲍莉、张玫英
助 教:甘羽
参与学生:吴佳芮、方洲、赖兴澜、虞子璐、袁心昊、曾德成、汪洋、杨鑫超
特邀评委:
余爽,南京建邺区规划和自然资源分局副局长
刘红杰,东南大学城市规划设计研究院城市设计所所长
张彧,副教授 (中期)
教学时间:2020.11-2021.01
课题背景
自上世纪80年代改革开放以来,中国的城市建设进入快速发展阶段,特别是住宅商品化以后,为满足社会需要,住宅建设标准不断提高,在设计、建造等方面体现出时代特点,为社会提供了多元的居住选择。经过数十年的发展,先期开发的处于边缘的新区已经逐渐成为成熟的城区,规划中的地块用地性质需要不断优化调整,住区也因建设年代日久而带来环境复杂、配套不足、空间无序等问题。加之居住人口结构变化、人员流动性大也导致了住区的社会结构发生了变化。在当前我国新型城镇化发展背景下,城市的存量更新、建成环境的精细化规划设计与建设已成为重要命题,这不仅存在于物质层面还应包含社会层面,以保障和提高不同人群的居住品质,体现社会的文明和进步。课题以城市先期开发的居住片区为研究对象,在对不同居住群体的生活特点和居住需求加以研究的基础上,选取特定潜力地块展开城市建成区社区更新的策略研究,利用新的居住介入以塑造共生社区,探索城市住宅建设及未来发展的多种可能性。
教学目标
1、本课题为研究型设计课题,旨在培养学生的社会人文关怀精神,建立跨专业的视野,尝试运用专业知识和能力为解决相应的社会问题提供可能和参考;
2、学习针对城市空间的社会学、行为学调研方法,通过对日常生活方式和环境的观察和解读,增强对生活环境的理解和认知,培养感知日常性城市、空间、活动与人的敏感性;
3、学习城市形态学和建筑类型学理论及方法,在设计过程中作为解读城市空间和建筑形式的工具,根据城市环境状况和居民生活模式进行居住单元及公共空间设计;
4、培养自主研究及设计创新的能力。探索从现实中进行价值判断并寻找设计问题,从文献和案例学习中提取建筑及空间原型,自主策划主题并提出解决策略。
课程概要
本次四年级设计课题以南京建邺新城的虹苑片区为研究对象,探讨应对新型城镇化战略的城市精细化发展背景下,如何在城市早期开发片区业已形成的社会、经济及建成环境肌理中经过对现状物质空间、社群结构和生活需求等多维度的评估,通过对引入居住人群和生活模式的策划,研究住宅形态和公共活动空间,植入新的功能及居住空间,完善生活设施配套,以激发城市生活及公共空间的活力,提升周边住区居民生活品质,以达成更大范围片区的整体更新。
课程以小组(每组2位同学)为单位展开分地块调研,对现状周边住区及现有居住空间进行评估分析,汇总完成基地及周边片区的总体调研报告,并通过文献阅读及案例学习,以共享社区为理念,策划恰当的居住人群、配套功能及其生活模式,进而从城市层级到居室层级展开街区空间场所、群体空间结构、单体功能组织及单元居住空间的设计。
1.基地及周边片区研究
基地位于南京市建邺区虹苑片区,近30年来建邺区快速发展,成为南京都市圈重要现代服务业中心和现代化城市新中心。随着城市的发展成熟,规划用地的性质需不断优化,原先的工业用地成为新一轮城市更新中的潜力地块。

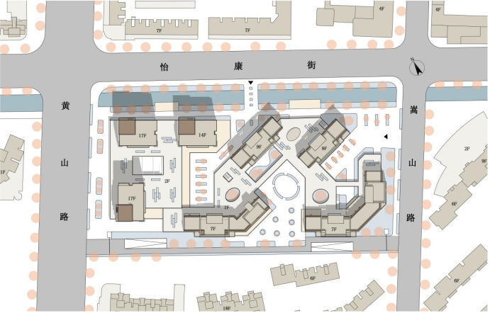
虹苑片区位于建邺区东北部,为南京河西新城建设由北往南、从无序到有序开发的交接带。基地地处片区中间,周边为建设跨度逾20年的居住小区,从单位保障房、普通商品房、高档大平层到联排别墅,小区或开放或封闭。其社区配套、空间结构到住宅户型都具有各自的年代属性和定位特征,不论贵贱,彼此相邻而居。基地西侧有规划中的城市绿地,内部现为环卫工人临时住房及汽车维修工厂,属于过渡性用地性质。前期研究强调对地块及周边住区的物质环境和居民生活的调研分析和评估,力图发现片区的问题和潜力,并通过对本地块的设计定位以激活整体片区。

建邺区上位规划

河西开发历史航拍图

虹苑片区整体分析
周边住区及居室空间调研
现状的调查研究及问题形成是课程的重要部分。课程要求对城市居民的生活环境、日常行为及社会关系网进行细心的观察及探究,包括对物质空间调研,如街道与交通,界面与出入口,公共空间使用状态,居住空间类型及户内空间使用模式等;以及研究居民的行为特征和居住需求,社区居民对生活空间与环境的主观诉求等。

周边住区调研信息

户型及户内公共空间研究
文献阅读与案例分析
本次课程加入了主题性的集中文献阅读,全组围绕教师提供的关于“共享居住”的相关文献进行学习与交流,了解这一理念与实践的相关历史衍变及其背后的社会、经济和政治驱动。在此基础上,各组提出基于自身理解与愿景的设计定位并有目的地确定案例,做深入分析和学习。




文献阅读相关解读
模式策划与空间设计
通过以上调研与分析,每组针对前期策划所确定的居住人群和生活模式,展开城市空间及居住空间类型研究,对功能活动进行合理组织,有创造性地植入社区公共空间及居住空间。将理想的生活模式植入场地以应对现有问题及未来发展,创造出理想的生活场景。策划设计在考虑物质环境的各层级空间的同时,也要关注居住人群的社会结构,尤其是对居住环境特别敏感的儿童与老年人,以塑造整体共享、富有活力的社区生活环境。

设计模型汇总
小组成果
G1:无界·承栖Borderless Co-living Community
方洲、吴佳芮

无界既是城市与场地无界——服务场地内部也人员的同时也服务周边人群;也是年龄之间的无界——不同年龄层的人都能在其中找到自己的归属感;更是时间的无界——随着时间变迁,人口结构的变化,能有一定的适应性,承接年轻的生命,提供全龄栖息之家。
根据周边环境及人流来向,生成针对不同人群的概念组团并确定住区出入口。在体量上,从城市肌理及日照要求出发,结合合租公寓、家庭公寓的不同居住模式进行设置。底层裙房进一步加强组团概念,处理沿街沿河的城市界面关系。屋顶平台的加入使得组团轴线形成虚实变化的节奏,同时平台下部各个组团院落也相互贯通。屋顶平台作为公共活动连接体,在点式组团部分其三层主要提供共享健身、活动、阅览等功能,而在板式组团部分其二层均作为养老公寓,结合共享活动室,方便老人室外活动并鼓励老人外出结交朋友,缓解老年生活的孤独感和社会适应性危机。
户型设计中,对青年群体,考虑租住型和家庭型两种模式,配备共享厨房,洗衣房等;对于家庭模式,关注户型的“可变性”与“可成长性”,以应对当今家庭结构多元化和家庭生活模式的多样化,均质灵活的结构使户型可从二室划分到四室,除此之外,通过户型合并使其具有更大的可能性,以满足多家庭共同居住的需求,并设计共享庭院,让老人孩童与自然接触更加紧密。

鸟瞰图

设计分析

片区图底关系

总平面图

底层平面

沿街立面


纵剖面图
塔楼平面 塔楼剖面
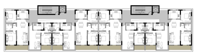
单元标准层平面

(从左至右:两口之家,核心家庭 ,二孩家庭,三代居)
可变户型设计


活动平台上下之公共空间
G2:小户·大院Small HousingLarge Community
赖兴澜、虞子璐

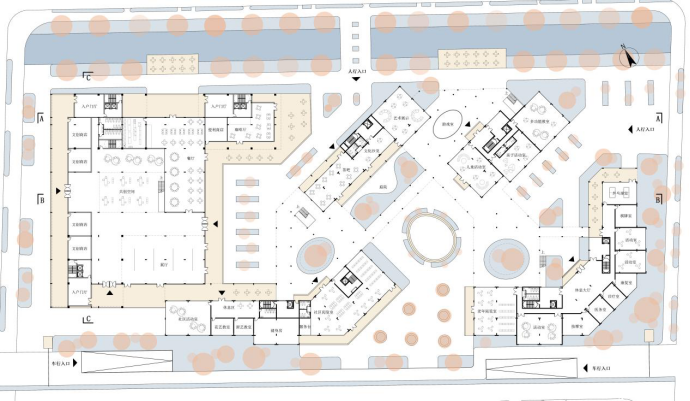
通过场地调研和人群分析,确定就近工作的青年和社区周边老年改善户为设计的目标人群,打造激发整个社区活力的混龄共享社区。为呼应场地西侧规划中的城市绿地,场地自西向东设置私密性逐渐加强的城市开放、混龄共享、老人私享三级院落。面向城市开放的西侧公共广场及其底层设置的配套设施缓解了周边社区设施不足问题,东侧院落空间相对封闭以满足住区的私密性要求。同时结合底层沿街商铺、沿河活动场地、室内共享、屋顶平台与楼栋连廊形成体验不同的公共空间。
在居住模式上选择青年、家庭、老年三类人群,针对单人、双人和多人提供多种类型的平层或复式户型单元,在社区里形成混合居住、共享互助的邻里氛围。

鸟瞰图

设计分析

片区图底关系

总平面图

底层平面图

沿街立面

纵剖面图

塔楼平面图 塔楼剖面图

单元标准层平面

透视图
G3:青年社区Young For You
袁心昊、曾德成

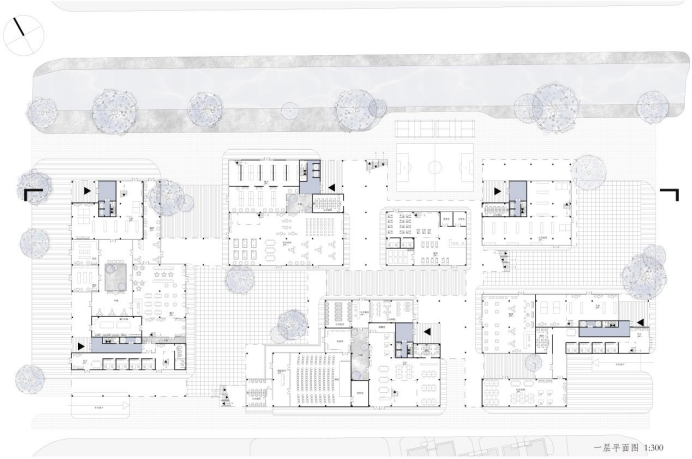
方案定位为青年社区。在场地的底层空间,采用类似于满铺的手法,以三个主要的广场为节点,串联三个广场的道路作为路径,以此来形成整个社区的领域。一二层分为五个组团,既内部自洽,又相互联系,力求打造一个灵活、多元的底层空间。整个街区的底层持对外开放的态度,策划了展览、文创、公共餐厅、剧院等一系列功能,服务于整体片区的居民,社区由此也成为片区的公共节点。
在户型的分配上设有单间,两室一厅及三室一厅三种形式。单间的空间排布比较灵活,适合当代年轻人对隐私感的要求。面积从30到50平方米不等。板式尽端,设置两室一厅和三室一厅,供年轻人合租使用。

鸟瞰图

片区图底关系
总
平面图

底层平面图

沿街立面

纵剖面图

单元标准层平面

街景透视

空中透视
G4:Integration Box
融·合汪洋、杨鑫超

杨·盖尔曾在《交往与空间》中提出正效应及负效应过程。正效应过程:有活动发生是由于有活动发生;负效应过程:没有活动发生是由于没有活动发生。其核心思想在于:优质的户外空间质量带来高频率的自发活动;高频率的自发活动带来更多的社群互动参与。
方案整体布局充分应对场地西侧的绿地、北侧的水系绿道及周边的建成区肌理,以体量相对集中的方式满足居住密度的要求,留出较多的公共空间和场地,并希望通过老人和幼儿的自发活动带动社区活力。人群主要定位于4-2-2家庭结构以及周边社区中的老人和幼儿。住宅设计包括多代家庭住宅和老年公寓,中间三个低层盒子作为主要共享生活空间与其周边的广场共同成为融合老人和小孩交互与活动的富有活力的生活场所。

鸟瞰图

设计分析

片区图底关系

总平面图

底层平面

单元标准层平面


广场透视
总 结
在教学过程中,学生分成四个小组对同一地块进行不同主题的住区设计研究。各小组从场地调研和文献阅读中发现问题,提出不同的人群生活模式和居住空间模式,进行了从城市形态、建筑组团、建筑单体到住宅户型的跨层级的思考和设计。师生在教与学的过程中,共同面对不同的问题与挑战,在持续往复的讨论与反思中,从理论认知到设计实践,探寻在复杂建成环境下社区更新中的问题与潜力,最终提出的成果既有创见又有实效,获得了来自专家和管理部门的高度认可。答辩过程评委给出的不同视角的点评也给同学们极大的启发。

授课过程

中期答辩(2020.12.21)和最终答辩(2021.1.17)
教学团队
鲍莉,教授,副院长。瑞士苏黎世联邦理工学院建筑学方向博士,瑞士苏黎世联邦理工学院社会及建成环境研究中心(ETH-CASE)访问学者。长期致力于建筑学创新人才培养的系统改革与实践。主要研究方向为城镇聚落的可持续衍进与再生、老龄化社会城市居住与社区活化、开放建筑理论与实践等。

张玫英,副教授,瑞典皇家理工学院访问学者。研究方向:建筑设计与理论。从事住宅设计以及绿色技术研究多年,长期担任东南大学《居住建筑设计原理》课主讲,主持四年级住区方向教学工作室,指导学生参加全国建筑院校学生设计竞赛(城市更新及住宅方向)多次获奖。具有丰富的实际工程经验,曾获UIA(国际建筑师协会)建筑设计竞赛获优胜奖及江苏省优秀建筑勘察设计一等奖等奖项。
信息提供:建筑系党支部

