
2020研究生设计课程| “红绿交织,三生和谐”:井冈山新乡村生活共同体营造·建筑设计篇

课题名称:“红绿交织,三生和谐”:井冈山新乡村生活共同体营造
指导教师:张彤、寿焘
评图嘉宾:李哲、李向锋、杨志疆
参与学生:李楚极、石帅波、胡雨菲、王嘉仪、于洋、陶永健、李美辰、蔡万成、何琦孜、袁上草、陈琛、樊梦楚、王立亚、袁福甜、朱统一、陈雨芊、杨雨晨、王之湄
课程时间:2020年10月-2021年1月
1课题背景
位于湘赣边界的井冈山,域内绿色生态基质与红色历史遗产交相辉映。课题依托茅坪镇马源村,选择乡村自然生态环境与生产生活场域中典型场所,融合建筑学科与风景园林学科各自优势,探索新型城乡关系和生态文明建设背景下的乡村景观营造与建筑设计,构建“红绿交织,三生和谐”的新乡村生活共同体。

课题场地模型
2建筑设计
建筑设计分为三个课题小组,依托马源村特色环境及现状条件,分别选择村中心稻田、村北侧坡地及村口公共区三块典型场地,在稻田、山坡、河道、公共设施等特色环境中展开建筑设计与改造提升,完善村落公共空间结构,激活乡村公共生活。聚焦公共空间营造、建造技艺创新和生态潜能激发,探索面向未来乡村环境可持续发展的新乡土建筑设计策略。

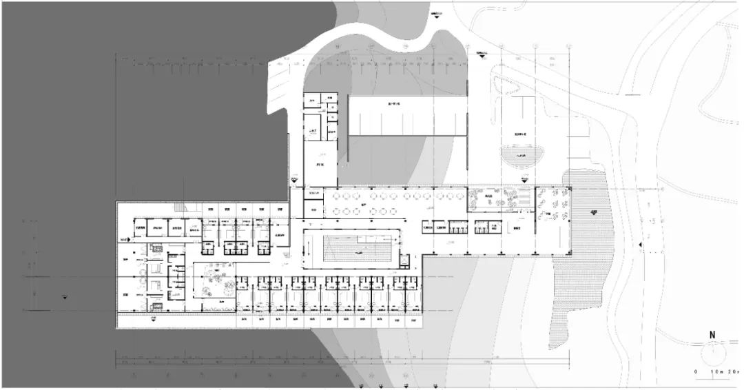
场地总平面图
3教学成果
1.马源稻田课堂设计
李楚极、石帅波、胡雨菲、陈琛
折扇亭
李楚极
设计围绕稻田中央“一溪三樟”的现状景观,充分利用当地绿色农业资源,以连续转折起伏的折形屋面结构,营造开放式生态研习驿站——“折扇亭”。折扇亭既是面向游客宣传当代乡村农业的文化视窗,也是融于当地村民日常生活的公共空间。建筑空间随地面与屋面起伏铺展,包含一个可容纳60人的中心开放讲堂,及两翼相关农业博览、产业推介、生态游赏等功能。

稻田中的折扇亭

折扇亭模型
折扇亭的材料建构系统彰显“乡土与生态复合、当代与传统对话”之意蕴,底层的夯土墙承托木桁架屋面,转折自然,分隔内部空间,实现建筑空间轻重对比。木构架交叠编织,跨越空间并承载由聚碳酸酯板拼接而成的轻型透光屋面,阳光之下,稻田之上,闪动绿色光影,交错斑驳。

材料建造解析

折扇亭平面图

展开剖面图

正立面图
浮顶课堂
石帅波
设计顺应稻田现状标高,选择北侧沿河高差较大的一块场地进行地形操作,将其微微隆起成绿植草坡,其上覆盖一个轻盈的曲面屋顶,构建一座开放式稻田讲坛。建筑主体由木材构筑完成,主体框架采用现代胶合木技术,由工厂预制现场快速组装,屋顶铺设木瓦,遥望如一顶“斗笠”悬浮于稻田之上。
稻田讲坛为开放式观演、教学、游憩空间,内外贯通互动。建筑内部创造性运用3D投影技术,设计了一幕穹形投影屏,打破过去乡村观影、教学授课模式,使村民和游客享受沉浸式感官体验。新形态与新技术的运用,塑造极具未来感的新乡村建筑,人们在这里学习交友、仰望星空、互联世界。

漂浮于稻田中的生态课堂

剖面详图

浮顶课堂建构解析
浮垄之下
胡雨菲
场地位于马源稻田中心位置,设计以“垄”为概念起点,提炼现状田垄肌理,将其梳理与整合,交织汇聚生成建筑形态。优化后的田垄高低错落,以当地土石铺就,保证稻田课堂功能使用的同时,也形成连接研学、交流、活动等各区块的田间游径。围护墙体以毛石砌筑,自周边向课堂中心逐渐隆起,尺度暗合空间高度之需与游走体验之便,综合架构出新的建筑地形。

浮垄形态设计逻辑

开放式稻田课堂内景
建筑屋顶是地面垄形结构的立体延伸,提取田畈自然形态,亦如漂浮垄上的朵朵荷叶,高低起伏,自由延展。上大下小的白色伞状结构交错支撑,实现对大地的“轻接触”,也达到对自然田野的保蓄与优化呈现。浮垄之下,稻田之上,在山水林田之间营造出一片生态研学、浪漫体验的大地景观。

浮垄模型

斑状自由延展的平面肌理

主体部分剖面图
2.马源书院设计
王嘉仪、于洋、陶永健、樊梦楚
隐山书院
王嘉仪
设计传承场地不远处茶源村耕读文化传统,打造一座融阅览、游居与乡村研学于一体的当代山景书院,为游人及村民提供一个文化康养的地景场所。书院融于竹林山景,顺应山势等高线呈“Z”形布局,层叠铺陈展开。

隐山书院整体鸟瞰

隐山书院模型
方案将传统书院空间进行当代重构,设置多条引向山林深处的步行游线。建筑主体藏于坡地地景中,自然山体被解构重塑,构建隐于山林的幽静康养之地。绿色屋面上架设多个点状全景阅读亭,如星星之火般点亮山林,营造浪漫辟幽的山间研修体验,更可俯瞰山脚下稻田景观。屋顶与室内流线在阅读亭处发生奇妙碰撞,室内顺应地势产生多级高差,每一层级以毛石墙锚固且限定,暗示地形转折与空间位移。

地形建构分析

书院平面图

融于山体的剖面结构
竹隐山房
于洋
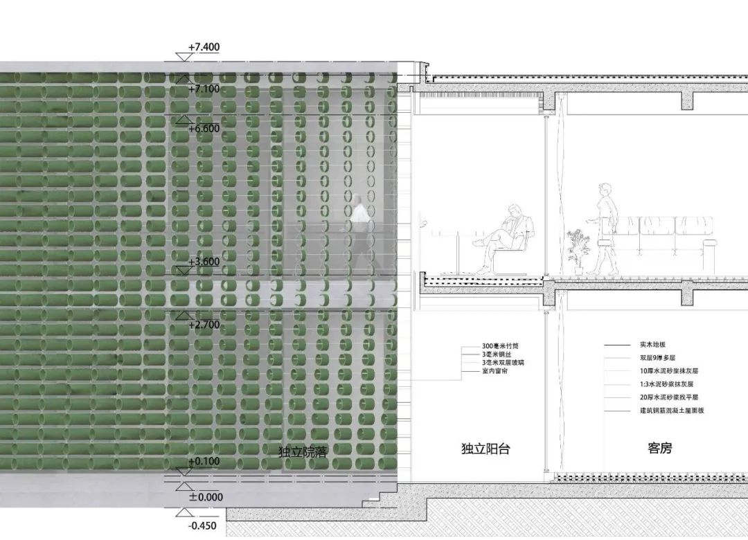
书院,作为中国传统文教建筑的典型形制,常伴竹林而设,彰显文化传扬与自然观想。场地位于马源北侧竹山坡地,设计方案直切等高线,由接待、住宿、研学三大主题功能组成的条状体块在地形中穿插叠落,营造连续有序的流线空间,配合有机异变的复合型表皮,控制不同朝向的空间开阖。
场地环竹林相抱,北侧为村庄竹加工厂,为方案竹构表皮提供在地依托。建筑表皮由竹节母题横纵编织、密制串联,从靠近山体的200mm单元间距渐变至靠近道路600mm单元间距,对应着内部空间由私密幽静至公共开放过渡,为适应局部空间采光通风需求,因地制宜地对立面开敞度进行精细化调整,在竹林起伏中若隐若现。文人好竹,研习于竹隐山房,体验竹影闪动与自然魅力。

竹隐山房夜景透视

竹隐山房模型

首层平面图

二层平面图

剖面详图
稻田书舍
陶永健
不同于前两块场地,设计选址马源稻田东北侧区块,四周视野开阔,风景环境优越,交通便利可达。方案是一个扭转地形,拟山流动的非线性地景式建筑。漂浮的屋面宛如揭开稻田表层基质,起伏延展的地表结构,其下覆盖着接待洽谈、展览展示及宣讲观演等功能。人们踏西侧水池汀步逐级进入建筑空间,体验生态稻田景观与地形空间魅力。

稻田书舍模型

延展飘逸的稻田书舍

空间形态解析

书舍内景
3.马源村口提升设计
李美辰、蔡万成、何琦孜、袁上草
吊柱廊桥
李美辰
为整合现状场地功能,优化游览路径,在村落水口处建造一座“吊柱廊桥”。桥上空间寻觅两条视觉轴线,一条迎合村口视线,另一条回应河道通廊,在桥心挖空屋顶形成开放院落,联结两条体量。廊桥一侧是交通空间,另一侧配以茶室等服务功能。主体采用传统吊柱结构架于石桥之上。山水遥望,碧波飞虹,实现空间跨越的同时也塑造了村口重要的公共节点。

飞架溪流的吊柱廊桥

吊柱廊桥模型

廊桥材料建构分析
马源食堂改造
蔡万成
设计依托既有建筑马院食堂,通过功能置换、结构加固、立面改造等手段,将其更新提升为一座新型乡村食堂,激活村落既有公共空间节点。原建筑由食堂、厕所及一栋废弃砖房组成,厕所占据最好的景观面,却遮挡了风景视线。方案力图重塑食堂与河道的关系,将厕所消隐,将屋顶延伸;在原有屋架基础上增加枝状新结构,强化原有结构承载的同时,增加屋面挑檐。富有韵律感的新旧结构有机结合在一起,为村民和游人提供特色乡土餐饮服务。

改造后的马院食堂模型

视野通透的大餐厅

空间布局与形态分析

剖面详图
水岸集市
何琦孜
设计方案是对村口既有超市及其附属环境的改扩建,充分激活现状场地,置入戏台功能,打造面向各类人群需求的活动空间。针对既有环形超市,设计通过打开天窗、抬升地坪等手段,达至优化采光通风等性能目标。方案依托乡土在地技术,对现有木结构及其连接构造方式进行改造,提升公共空间品质。

水岸集市模型

改造后的超市剖面详图

空间层叠解析
4答辩评图
期末答辩评图,建筑组同学分别就各自方案概念、生成逻辑、技术成图等进行汇报,李哲、李向锋、杨志疆三位老师作为特邀评图嘉宾,对各组方案进行了点评,并与课题组师生共同交流探讨。

教师点评

学生汇报
5指导教师

张彤,教授,博士生导师。
寿焘,至善博士后。

