相对长久的主体结构与随着时代变化的居住需求之间的矛盾,是一个由来已久的住宅设计问题。50年前Architectural Design出版社发表《Housing / flexibility?》,聚焦欧洲的可变套型及其结构体系。

上世纪八九十年代,我国的可变住宅、开放住宅探索迎来高峰。东南大学鲍家声教授发展了支撑体住宅理论,卫兆骥研发了计算机辅助住宅方案设计系统HSCAD,1993年贾倍思的著作《长效住宅》系统性地提出了长效策略与设计方法。2006年李飚教授在开始住宅生成设计(generative design)的科研与教学。

本次“长效高层住宅”四年级设计课探索相对稀疏的框架剪力墙结构如何与多种套型在不同的时空尺度上共存,展示高层住宅的承重结构(寿命70-100年)对居住空间(比如20年更新一次)的多适性。基于南京及其周边城市的7000多个套型库,采用Python编程语言进行套型的指标与适用人群分析、拼接套型与核心筒、生成剪力墙结构的平面布局并匹配多种套型组合。
T4,T5,Tn
张思祺,邱子仪一组核心筒连接4户(T4)是南京一种常见的高层住宅单元模式,由一条连廊连接左右2个筒(各自包含1部电梯和1部楼梯)。为了适应户型需求的变迁,该小组设计了一个相对稀疏的框架剪力墙平面布局,既可以容纳4户又可以容纳5户(T5)。而T5也可以合并某2户形成大户型(子母套),从而又变成T4。

用Python程序从套型库中选择合适的L形边户,与一个中间户组合起来,进而与核心筒拼接构成“标准层”平面,最后根据既定承重结构对所有内外墙体进行微调。

在编程过程中,把时代变迁的具体生活场景融入到套型配置中。
如果把核心筒连廊延长并增加电梯楼梯,可以形成面宽更大的单元,即把T4、T5的模式延伸至Tn。
全年龄段长效住宅
郭一凡,张旭,黄雨曈

将南京套型库(共计2545个)中的套型与给定核心筒进行匹配,分别显示外轮廓与内墙,将500+匹配结果进行叠加。

将外轮廓密集重叠的位置设为标准层的基本轮廓;而在内墙密集叠加的位置设置剪力墙能适配较多的户型。
分析户型人群定位及其居住空间的核心特征,并转化成程序代码,对套型库中的套型作进一步筛选和分类。
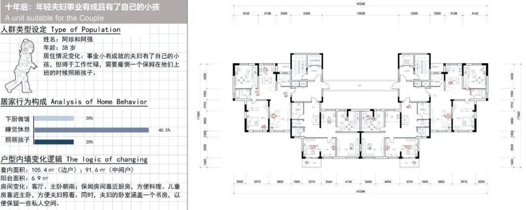
T4、T2分别设有3种标准层,适配年轻夫妇、三/四口之家、三代同住、养老居住在内的4种典型人群,套型进行筛选、组合和优化,并探讨多年后生活状态改变如何影响户内的格局变化。

基于自主编写的Python程序,为任一框架剪力墙平面布局(从套型库中)寻找合适的套型,从而检验该承重结构的“多适性”。

“蒙德里安”
鲁瑞琪,刘泊明
我有意识地创建具有和谐韵律的水平与垂直线,这些基础形式因为真实而健壮。——Piet Mondrian

受到抽象几何绘画的启发,该小组用Python程序对居住单元的长方形面域进行迭代剖分。每一次剖分具有一定随机性,但同时控制不会产生太窄的长方形。这样的迭代剖分得到了很多种不规则的但尺寸较为和谐的平面构图,在其中的角点处设剪力墙或柱。

利用程序为“蒙德里安”式的框架剪力墙平面布局寻找合适的套型,进而使套型内外墙与剪力墙或柱对齐,形成最终的住宅单元平面图。结果表明这种“抽象”的承重结构布局具有很强的灵活性。

小组成员:庄淏,周健行,黄雨曈,刘泊明,马斌,张思祺,张旭,鲁瑞琪,郭一凡,陈瀚韬,邱子仪,刘海同
指导老师:华好,王倩(中交地产)
助教:张笑凡,刘逸卓
顾问:周志勇(弘阳集团)
中期答辩评委:陈闯(基准方中)
答辩评委:童滋雨(南京大学),彭伟(江苏省建筑设计院),唐芃

