课程信息
指导教师:李飚、刘一歌
助教:周玥
学生:邱子仪、张思祺、肖敏荣、瞿奕文、温少扬、姚新、郑润哲、高雅
评图嘉宾:赵辰、傅筱、杨波、华好
课程时间:8周
课程背景
性能化设计与建构
伴随计算机技术的发展,性能参数不再仅仅被视作建筑的后评估指标,而开始融入建筑设计流程,成为影响建筑形式生成的要素。借助相关数字工具,建筑师得以建立建筑几何与建筑性能之间的量化关联,有助于实现能耗更少、舒适性更高、气候适应性更强的建筑形式。
轻型结构
本次课程设计中,轻型结构采用织物膜材等轻质材料。此类结构重量轻、耗材少,且柔软可变。本课程的主要难点在于,需要结合场地环境及使用需求,设计并建造出具有气候适应性的可变轻型结构,以改善场地现状,同时保证结构稳固。
课题目标
本次课程设计的场地设在东南大学四牌楼校区前工院中庭,具体设计要求如下:
1.根据场地气候及使用需求的分析结果,建立形态生成逻辑;
2.轻型结构需在静态或动态情况下均保持稳固;
3.在建筑形式或建构方式上具备创新性;
4.掌握相关数字工具:建筑性能分析工具(ladybug,honeybee,climate studio等)、建筑形式生成工具(rhinoceros,grasshopper等)、找形工具(kangaroo等)、数控加工工具(python、弯管机、编织机等);
5.对环境、结构、材料、场地、空间、形式进行综合设计。
教学要点
1.学习性能化建筑数字设计工具;
2.探索基于环境性能与使用需求的建筑形态生成逻辑;
3.学习轻质材料的数字设计与加工方法;
4.探索创新的建筑形式与建构方式。
学生作品1:可变织物遮阳
设计者:邱子仪、温少扬、瞿奕文
设计说明:
本次课程设计从改善建筑物理环境和人群活动需求出发,借助Climate Studio和Grasshopper的光环境分析和热舒适分析工具,设计加建部分的尺度和具体使用状态。设计旨在改善两个问题,一是强光直射与采光需求、景观视野之间的矛盾,二是同层缺乏小尺度、适用于学生和教师灵活使用的公共空间的问题。设计方案基于前工院既有建筑的单元化布局,并综合考虑了智能调控、私密通透转换、空间活动尺度及立面形态进行设计。立面叶片的自动调控系统(传感+收放+旋转),整合了照度/温度传感器+wifi电机+异形轨道+轴承与定滑轮+单片机微控制器等多项技术。
空间与使用效果:


性能分析与交互模式:



建造轴侧与模型演示:


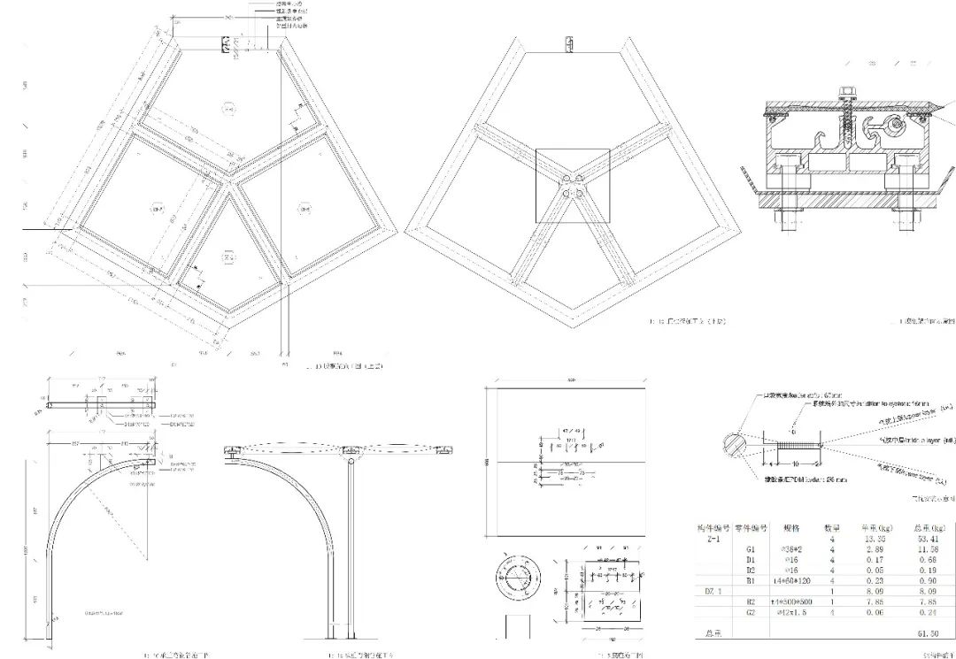
学生作品2 :可变气枕结构
设计者:张思祺、姚新
设计说明:
本次课程设计采用树状气枕结构单元,通过中心式、中轴对称以及高低错落的排列组合,为建筑学院师生围合出趣味的户外活动场地,并回应了东南大学四牌楼校区的校园空间特色。在此基础上,进一步引入动态气枕构造,以实现结构单元透光率的自主调节,优化场地物理环境。动态气枕由三层膜材构成,通过上下气室的气压变化来调节中层膜材变形,实现透光率的动态变化。具体而言,上层与中层膜材镀有互为图底的遮光图案,下层膜为全透明。当上层气室放气,下层气室充气时,上层膜与中层膜的遮光图案贴合,气枕透光率降至最低,遮光效果最佳;当上层气室充气,下层气室放气时,上层膜与中层膜分离,气枕透光率增高,为下部空间引入更多阳光。动态气枕的控制系统由Arduino单片机以及外接气泵、温度/照度/气压/触摸传感器构成,实现了温度、光照、气压触发的自主调节以及人为触压控制等多种控制模式。
空间效果与结构布局:


性能分析与互动模式:



建造图纸与模型演示:




00:11
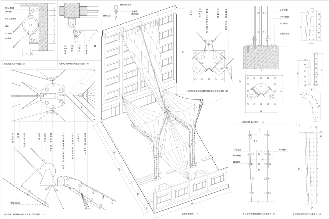
学生作品3 :可变索膜
设计者:肖敏荣、郑润哲、高雅
设计说明:
本次课程设计从应对中庭南北两侧不均匀的光照问题出发,通过半透明的膜材对南立面进行遮挡,将光线漫反射到北面,以此来改善两侧的室内光环境。此外,顶部膜结构通过电机和索道可实现收拢/展开等形态变化,以应对不同时间段的采光及使用需求。中庭下部空间还设置有可遮风挡雨的膜结构屋盖,形成跨度为十四米的空间,可满足建筑学院师生各类活动(如歌手大赛、体育活动、会议展览等)需求。
空间效果与结构布局:



性能分析与互动模式:

建造图纸与模型演示:



信息来源:教师综合党支部建筑运算与应用研究所

